Torino (TO) - Via Giulia di Barolo 5
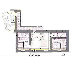
COLBERT 5 Alloggi di pregio ristrutturati a nuovo in elegante edificio d'epocaConsegna prevista: dicembre 2023 - Classe energetica A/4Edificio libero da allacciamento a rete gas metano!Alloggio 16 - P.1°.In edificio storico adiacente Piazza Vittorio in corso di totale ristrutturazione, all'angolo tra via Verdi e via Giulia di Barolo, appartamento trilocale con esposizione su Giulia di Barolo, sito al piano primo costituito da: ingresso su soggiorno con cucina a vista, due camere matrimoniali, due bagni.Cantina.Altezza soffitti: mt 3,60.Riscaldamento e raffrescamento centralizzati (geotermico).Scopri altre soluzioni disponibili su www.colbertcinque.comCOLBERT 5 è un ambizioso intervento di riqualificazione Edilizia e Urbana che trasformerà il palazzo posto all'angolo tra Via Verdi e Via Giulia di Barolo, progettato nel 1840 dall'architetto Antonio Talentino, in un edificio residenziale di prestigio, nel pieno rispetto della storicità del manufatto e con i più elevati standard di risparmio energetico.Il palazzo, realizzato intorno a una Torre di guardia dell'antica mura di cinta abbattuta in epoca Napoleonica, offre i vantaggi di una localizzazione privilegiata, ideale per gli amanti delle comodità e della mobilità sostenibile. Tutti i principali luoghi di interesse della città sono raggiungibili a piedi, così come la pista ciclabile del Po, un anello di 30 km che collega San Mauro a Moncalieri, una via di fuga dal caos cittadino per chi ama lo sport e il relax nel verde.COLBERT 5 dà grande importanza alla valorizzazione degli spazi condivisi e dei servizi comuni per offrire i migliori standard abitativi. Al piano terra una portineria collegata direttamente all'androne principale garantirà la privacy e la sicurezza dei condomini. La corte interna, riorganizzata prevedendo un'alternanza tra aree verdi, rampe e camminamenti in pietra, necessari per l'abbattimento delle barriere architettoniche e per il raggiungimento di tutte le unità abitative, consentirà ai nuovi condomini di sentirsi immersi nel verde pur trovandosi nel pieno centro di Torino.Al piano interrato saranno realizzati una sala polivalente a disposizione dei residenti, un'area Gym attrezzata con spogliatoi e bagni, una lavanderia comune, un locale comune per il deposito delle biciclette raggiungibile con ascensore.Pur mantenendo le caratteristiche storiche dell'edificio, l'intervento ha come obiettivo il raggiungimento dei massimi standard di efficienza energetica attraverso un sistema impiantistico innovativo. L'attenzione progettuale non sarà orientata esclusivamente all'aspetto di efficientamento energetico ma anche a quello statico: si prevede, infatti, il consolidamento di tutte le strutture del fabbricato, migliorando l'attuale comportamento sismico dell'edificio di 2 classi.
Zona
Centro, Quadrilatero Romano, Giardini Reali, Repubblica
Data immobile
28/01/2023
Contratto
Vendita
Prezzo
368.000 €
Tipologia
Trilocale
Superficie
108 m2
Locali
3
Bagni
2
Piani stabile
5
Spese condominiali
0 €
Ti interessa questo immobile?