Aosta (AO) - Regione Arionda

Quadrilocale di 107 MQ in vendita

405.000 €

107107 m2
44 locali
22 bagni
Stampa Scheda

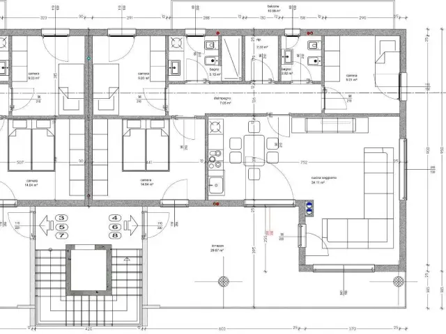
Appartamento di nuova costruzione in consegna entro settembre 2027, situato al terzoo piano di una palazzina moderna composta da sole otto unità abitative, servita da ascensore.

L’ingresso dell’alloggio avviene attraverso una terrazza privata di circa 30 mq, che garantisce privacy grazie alla presenza di un portoncino blindato e di un muro che separa l’accesso dal vano scala condominiale. Un secondo portoncino blindato conduce all’interno dell’abitazione, che si apre su un ampio soggiorno con cucina a vista di circa 35 mq.

La zona notte comprende una camera matrimoniale, due camere singole, due bagni finestrati e un comodo ripostiglio. È inoltre presente un balcone con affaccio a nord, accessibile dal bagno padronale.

In questa fase è ancora possibile personalizzare gli interni, scegliendo finiture e riorganizzando gli spazi secondo le proprie esigenze.

La proprietà comprende due posti auto coperti e un ampio magazzino/deposito situato nei piani interrati, raggiungibili direttamente con l’ascensore. I depositi con superficie superiore ai 20 mq dispongono di una rampa carrabile, che ne consente l’accesso diretto con piccoli mezzi come moto o scooter, e sono ideali anche per lo stoccaggio di materiali ingombranti come pneumatici, attrezzatura sportiva, mobili stagionali o utensili da bricolage.

L’intero edificio sarà realizzato in classe energetica A4, il massimo livello disponibile. Ogni unità sarà dotata di pannelli fotovoltaici indipendenti, pompa di calore e accumulatore, per garantire un’elevata efficienza energetica. Anche le aree comuni disporranno di un impianto fotovoltaico dedicato, con un significativo abbattimento dei costi di gestione.

La consegna è prevista per settembre 2027. Una proposta ideale per chi cerca una casa moderna, efficiente e ancora completamente personalizzabile.

Per ulteriori informazioni è possibile visitare il nostro ufficio oppure contattare il numero 349 4116134.

Caratteristiche immobile

Data immobile

14/05/2025

Contratto

Vendita

Prezzo

405.000 €

Tipologia

Quadrilocale

Superficie

107 m2

Locali

4

Bagni

2

Stato

Nuovo

Classe energetica - IPE

A4 3,51 KWH/MQ2

Piani stabile

5

Riscaldamento

Autonomo

Posizione

Ti interessa questo immobile?

Cliccando Invia, dichiaro di aver preso visione dell'informativa privacy

Oppure chiama al numero 011500306