Riccione (RN) - Viale Vincenzo Monti 14

Appartamento di 118 MQ in vendita

630.000 €

118118 m2
55 locali
22 bagni
Stampa Scheda

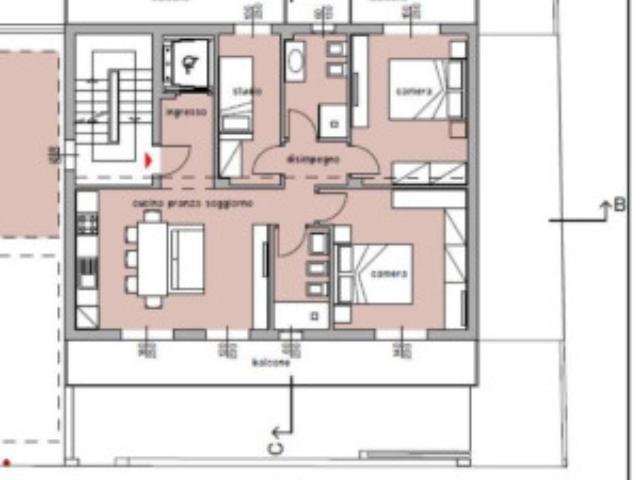
Questo appartamento, situato al primo piano di una moderna palazzina in fase di completa ristrutturazione, è il connubio perfetto tra tranquillità e vita urbana. Ogni dettaglio è pensato per offrire un’esperienza abitativa unica, combinando spazi generosi e comfort contemporaneo.

Entrando, ti accoglierà una luminosa zona giorno con cucina a vista, dove l’eleganza incontra la funzionalità. Le grandi finestre si aprono su un balcone, uno spazio perfetto per goderti la brezza marina o un caffè mattutino immerso nella quiete. Le due camere matrimoniali, entrambe dotate di balcone privato, regalano privacy e comfort, ideali per chi cerca uno spazio personale o vuole ospitare con stile. La terza camera, più intima, può trasformarsi in uno studio accogliente o in un rifugio per i tuoi ospiti. I doppi servizi finestrati, moderni e raffinati, completano l’abitazione offrendo praticità senza rinunciare al design.

Ogni angolo di questa casa è stato progettato pensando al tuo benessere, ma non finisce qui. Al piano terra troverai una cantina, perfetta per soddisfare le tue esigenze di spazio aggiuntivo, e un indispensabile posto auto proprio sotto casa, un valore aggiunto irrinunciabile per la vita quotidiana.

Questa casa non è solo un luogo in cui vivere, ma una scelta che rappresenta uno stile di vita. La posizione strategica ti permette di immergerti nella serenità del mare senza rinunciare alla vivacità del centro città. È un rifugio moderno dove il comfort incontra il lusso quotidiano.

Non perdere l’opportunità di vivere in una casa così speciale. Contattaci subito e vieni a scoprire il tuo nuovo spazio, dove ogni giorno può iniziare con il profumo del mare e il piacere di una vita senza compromessi.

N.B. Si avvisa la spettabile clientela che le caratteristiche tecniche, la disposizione interna e gli accessori indicati, potrebbero in alcuni casi essere diversi dall'effettivo stato di fatto dell'immobile.
A causa delle difformità dei dati pubblicati dai vari portali, la società Facile Rogitare Misano SRL declina ogni responsabilità per eventuali involontarie incoerenze. Si precisa che le descrizioni sopra riportante non rappresentano alcun impegno contrattuale.

Caratteristiche immobile

Data immobile

18/10/2025

Contratto

Vendita

Prezzo

630.000 €

Tipologia

Appartamento

Superficie

118 m2

Locali

5

Bagni

2

Stato

Nuovo

Classe energetica

A2

Piani stabile

3

Riscaldamento

Autonomo

Cucina

Cucina aperta

Posizione

Ti interessa questo immobile?

Cliccando Invia, dichiaro di aver preso visione dell'informativa privacy

Oppure chiama al numero 011500306